Deutschlandhaus

Deutschlandhaus von Hadi Teherani Architects

Mit seiner roten Klinkerfassade und den lichtdurchfluteten Innenräumen schafft das Deutschlandhaus von Hadi Teherani Architects eine harmonische Verbindung von Tradition und Innovation im Herzen Hamburgs. Laut dem Architekturbüro wird eine Zertifizierung der Kategorie „Leadership in Energy and Environmental Design LEED Gold“ angestrebt. Die Vorzertifizierung ist bereits erreicht.

Details zur Referenz

Gebäudetyp Quartier und Mischnutzung
Produktbereiche Fenster Fassaden
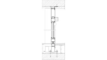
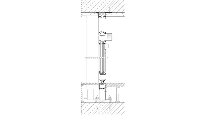
Schüco Systeme AWS 90 BS.SI+ FWS 35 PD.HI FWS 50.SI AWS 65
Merkmale Neubau LEED Design und Ästhetik Außergewöhnliche Architektur Investoren
Standort Hamburg, Hamburg
Fertigstellung 2022
Architekten HTA Hadi Teherani Architects GmbH,Zechbau GmbH NL Hamburg
Fachbetrieb HAGA Metallbau GmbH
Bildnachweis © HGEsch

Moderne Mischnutzung

Das Deutschlandhaus beeindruckt durch seine markante Fassade aus stilbildendem Rotklinker, die in vertikalen Verbänden gestaltet ist. Klare Linien und der Einsatz von Stein und Glas verleihen dem Gebäude eine zeitlose Eleganz. Oberirdisch erstreckt sich die Gesamtfläche über rund 40.000 m2, davon entfallen etwa 29.000 m2 auf moderne Büroflächen. Ergänzt werden diese durch rund 30 exklusive Wohnungen am Valentinskamp sowie ansprechende Einzelhandelsflächen mit Gastronomie im Erdgeschoss. Im Inneren schafft ein lichtdurchflutetes Atrium mit ellipsoidem Grundriss eine Oase der Ruhe und Kreativität, während die umlaufenden Wasserbecken und Terrassen vielfältige Nutzungsmöglichkeiten bieten.

Produktinformationen

AWS 90 BS.SI+

Schüco Fenstersystem AWS 90 BS.SI+

Höchstwärmegedämmtes Blockfenster mit verdecktem Flügel für anspruchsvolles Design

Optimierte Wärmedämmung kombiniert mit den Vorteilen einer Aluminium-Fensterkonstruktion in schlankem Design ohne sichtbare Flügelkonturen: Schüco AWS 90 BS.SI+ (Block System Super Insulation) erfüllt höchste architektonische Ansprüche bei größtmöglicher Transparenz.

Mehr erfahren

FWS 35 PD.HI

Schüco Fassadensystem FWS 35 PD.HI

Hochwärmegedämmte Panorama Design Fassade mit integrierter Lösung für Ganzglasecken ohne Profile

Lichtdurchflutete Architektur mit maximaler Transparenz ohne Kompromisse: Das hochwärmegedämmte Fassadensystem Schüco FWS 35 PD.HI (Panorama Design High Insulated) bietet eine systemintegrierte Lösung, mit der Ganzglasecken ohne vertikale Pfostenprofile realisiert werden können. Das Ergebnis sind repräsentative Panorama Design Fassaden mit erstklassiger Optik und optimaler Sicht nach außen, die höchste Ansprüche im gehobenen Wohn- und Objektbau erfüllen.

Mehr erfahren

FWS 50.SI

Schüco Fassadensystem FWS 50.SI

Passivhauszertifizierte Pfosten-Riegel-Fassade für variantenreiche Lösungen

Basierend auf einer wegweisenden Isolatortechnologie bietet das Schüco Fassadensystem FWS 50.SI (Super Insulated) höchstwärmegedämmte Lösungen für die Ausführung von variantenreichen Fassaden und Lichtdächern auf Passivhausniveau – inklusive optimierter Fertigungs- und Montageprozesse.

Mehr erfahren

AWS 65

Schüco Fenstersystem AWS 65

Hochwertiges Aluminium-System mit umfangreichen Lösungsvarianten

Das wärmegedämmte Fenstersystem bietet als Bestandteil der Schüco AWS Systemplattform für unterschiedlichste Anforderungen der Gebäudehülle umfangreiche Lösungsvarianten für die Bautiefe 65 mm.

Mehr erfahren