Kunstsilo

From agriculture to art: Revitalising a silo

The Kunstsilo in Kristiansand demonstrates how the respectful conversion of a historic industrial building can create a new cultural space. The conversion of the grain silo into a museum means the past can be preserved and provides a modern setting for the art of today. The Kunstsilo is a perfect example of how a creative conversion can use the existing fabric of a building responsibly.

Reference details

Type of Building Art, culture and design
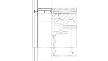
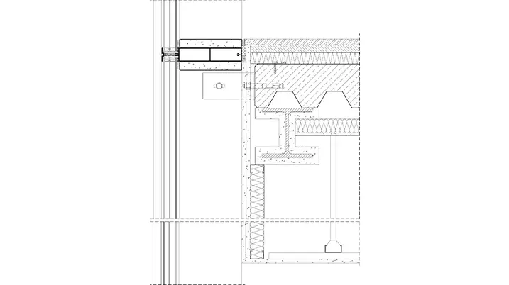
Product areas Windows Facades Sliding doors
Schüco Systems AWS 90 BR AWS 70.HI AWS 50.NI ASE 80.HI FWS 50
Features Refurbishment Fire protection Smoke protection Design and Aesthetics Famous Building Investors
Location Kristiansand, Norway
Completion 2021
Architects Backe Sør AS,Mestres Wåge Arkitekter AS
Specialist company NorDan Rubicon AS
Picture credits © alanwilliamsphotography.com

Silo transformed into a museum

The Kunstsilo represents a successful transformation of a former grain silo into a modern art centre. Due to its striking appearance, it is considered to be the most spectacular museum building in Scandinavia. In cooperation with Mendoza Partida and BAX Studio, architectural practice Mestres Wåge has carefully revitalised the listed 1930s building and created a piece of architecture that is unique in its spatial experience and shape. The former silo was converted into a huge, open hall with a height of around 20 metres.

DEMO Bild | Description Alterantive-Text
Historical photos of the grain silo

Re-interpretation of the building envelope

The design of the Kunstsilo is a perfect example of adaptive reuse. Instead of concealing the industrial features of the silo, they were emphasised using contemporary procedures. For example, the architects opted for a perforated aluminium skin to cover the original concrete structure, which not only allows a new interpretation of the shape of the original building, but is also an interesting way to channel daylight into the interior spaces.

DEMO Bild | Description Alterantive-Text

Church-like interior

The main feature of the design is the 30 cylindrical silos with a height of 38 metres, into which a church-like atrium has been integrated. Standing at around 20 metres in height, the newly-created space is surrounded by white galleries spanning three floors, which are used for the alternating exhibitions and open up exciting visual lines through the building. The glazed roof storey, where the characteristic silo cylinders are easily recognisable, offers a spectacular view.

Successful conversion

The Kunstsilo is a success story for supporting creative and responsible conversions, as well as for using the existing fabric of the building responsibly. No longer usable as a grain silo, the grey energy of the existing building can continue to be used thanks to its conversion into a museum. The result is a truly unique building that skilfully integrates the building's history as a former silo into the architectural concept of the art centre.

Product information

AWS 90 BR

Schüco Window System AWS 90 BR

Combined burglar and bullet resistance – perfect for large commercial projects

Be it a bank, government building or embassy – large commercial projects in particular place stringent security requirements on windows. The Schüco AWS 90 BR (Bullet-Resistant) window system offers individually tailored burglar and bullet-resistant solutions for applications in a wide variety of building concepts: in addition to turn/tilt, tilt-before-turn and side-hung windows, fixed glazing can also be constructed.

Learn more

AWS 70.HI

Schüco Window System AWS 70.HI

Highly thermally insulated window system with attractive range of solutions

As part of the Schüco AWS system platform, Schüco AWS 70.HI (High Insulation) offers an attractive range of solutions with outstanding thermal insulation for the 70 mm basic depth.

Learn more

AWS 50.NI

Schüco Window System AWS 50.NI

Non-insulated window system specifically for interiors

The Schüco AWS 50.NI (Non Insulation) aluminium window system for the basic depth of 50 mm offers extensive solutions for a wide range of requirements without the need for thermal insulation as well as specifically for interior construction.

Learn more

ASE 80.HI

Schüco Sliding and Lift-and-Slide System ASE 80.HI

The latest generation of highly thermally insulated sliding and lift-and-slide systems

Barrier-free, very easy to use and a slimline appearance – the high-insulation Schüco ASE 80.HI (High Insulated) sliding and lift-and-slide system offers elegant design solutions for sustainable, user-oriented architecture to passive house level.

Learn more

FWS 50

Schüco Façade System FWS 50

High-performance mullion/transom façade with 50 mm face width – the basis for a variety of solutions

The Schüco FWS 50 façade system is an impressive basic system for façades and skylight areas with a high level of flexibility and attractive design options, including optimised fabrication and installation processes. Thanks to a broad system range, solutions for the most varied requirements and applications can be implemented.

Learn more