Refugio en el Delta

Passivhaus mit Resilienzfaktor

In einer Zeit, in der nachhaltige Baupraktiken immer wichtiger werden, hebt sich das Refugio en el Delta im argentinischen Tigre-Delta hervor: Als eins der ersten passivhauszertifizierten Wohngebäude in Argentinien zeigt es, wie moderne Designprinzipien mit natürlicher Umgebung in Einklang gebracht werden können – resiliente, nachhaltige und innovative Aspekte inklusive.

Details zur Referenz

Gebäudetyp Einfamilienhaus
Produktbereiche Fenster Fassaden Brand- und Rauchschutz Sicherheit BIPV
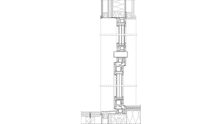
Schüco Systeme LivIng 82
Merkmale Neubau Energieeffizienz Passivhaus Resilienz Design und Ästhetik
Standort San Fernando, Argentinien
Fertigstellung 2022
Architekten MAPA Arquitectos; Joaquín Berdés
Fachbetrieb El Bulevar Aberturas S.A.
Bildnachweis © Leonardo Finotti

Amphibisches Wohnen

Das Refugio en el Delta ist ein innovatives Wohnhaus im argentinischen Delta del Tigre, das moderne Architektur mit den natürlichen Gegebenheiten der Region vereint. Es ist als Amphibienhaus konzipiert. Dieser Begriff ist aus dem Tierreich abgeleitet und beschreibt hier ein Gebäude, das so entworfen ist, dass es an wechselnde Wasserstände angepasst ist. Es wurde auf einem erhöhten Fundament errichtet, um den saisonalen Überschwemmungen des Paraná-Miní-Flusses standzuhalten.

DEMO Bild | Description Alterantive-Text

Natürliche Materialien

Das Haus wurde aus vorgefertigten Elementen errichtet, die mit kleinen Booten transportiert wurden. Hauptsächlich verwendet wurden laminiertes Holz der wiederaufgeforsteten Elliotis-Kiefer und vorgefertigte SIP-Platten. Diese Materialien schaffen eine harmonische Verbindung zwischen Architektur und Natur und leisten einen Beitrag zur Entwicklung umweltfreundlicher Wohnkonzepte in Argentinien.

Vorreiter für energieeffizientes Wohnen

Das Refugio en el Delta ist eines der ersten Passivhäuser in Argentinien und verfolgt einen bioklimatischen Ansatz, der den Energieverbrauch minimiert und den Innenraumkomfort maximiert. Durch gezielte Maßnahmen zur Luftdichtheit und Wärmeübertragung wird ein optimales Klima im Haus gewährleistet. Das verbaute Kunststoff-Fenstersystem Schüco LivIng erreicht hervorragende Wärmedämmwerte. Die Anordnung der Räume fördert die Interaktion mit der Außenwelt, während der Energieverlust minimiert wird. Ein System von Galerien reguliert den Lichteinfall und schafft einen fließenden Übergang zwischen innen und außen.

Produktinformationen

LivIng 82

Schüco Fenstersystem LivIng

Schüco LivIng - Die neue Systemgeneration für zukunftsweisende Fenster aus Kunststoff

Das auf der Twin-Systemtechnologie basierende Fenstersystem Schüco LivIng überzeugt durch einfache, effiziente und flexible Fertigung sowie Montage. Gleichzeitig werden höchste Ansprüche an Komfort und Sicherheit sowie vielfältige Möglichkeiten bei Gestaltung und Ausführung ermöglicht.

Mehr erfahren