EUREF-Gasometer

Industriedenkmal als bauliches Statement der Energiewende

Der Gasometer in Berlin-Schöneberg, einst Symbol des Industriezeitalters, wurde durch eine umfassende Sanierung in ein Büro- und Veranstaltungszentrum transformiert. Dafür integrierte man einen Büroturm mit 35.000m² Nutzfläche in das denkmalgeschützte Stahlgerüst. Ein hoher Vorfertigungsgrad sicherte dabei Präzision und eine effiziente Montage. 

Details zur Referenz

Gebäudetyp Quartier und Mischnutzung
Produktbereiche Fenster Türen Fassaden Sonnenschutz
Schüco Systeme FWS 50 ADS 75 HD.HI AWS 75.SI+ AD UP 75 AWS 65 BS CTB auf AWS AF UDC 80
Merkmale Sanierung Design und Ästhetik
Standort Berlin, Berlin
Fertigstellung 2023
Architekten EUREF-Consulting Gesellschaft von Architekten und Ingenieuren
Fachbetrieb FKN Fassaden
Bildnachweis © Stefan Brückner

Bedeutendes Zeugnis der Industriearchitektur

Der zwischen 1908 und 1910 errichtete Gasometer versorgte die Stadt über Jahrzehnte mit Gas und konnte bis zu 160.000 Kubikmeter Brennstoff speichern. Als Symbol des Berliner Industriezeitalters prägte er mit seiner imposanten Stahlkonstruktion, die 1994 unter Denkmalschutz gestellt wurde, das Stadtbild. Nach seiner Stilllegung stand das Gebäude jedoch lange leer – bis das Gelände Teil des Innovationsparks EUREF-Campus wurde und die neuen Eigentümer ein Projekt zur Umgestaltung des Wahrzeichens vorstellten.

Neues Nutzungskonzept in historischem Stahlgerüst

Ab 2007 begann die umfassende Revitalisierung des gigantischen Gasbehälters. Die ikonische Stahlkonstruktion blieb dabei vollständig erhalten, während der Innenraum grundlegend neu gedacht wurde: Ein 15-stöckiger Büroturm mit rund 35.000 m² Nutzfläche wurde in den kreisrunden Grundriss integriert – optisch im historischen Ring „schwebend“ und mit einem respektvollen Abstand von einem Meter zur historischen Struktur. Darin entstanden moderne Büroflächen, flexibel nutzbare Eventbereiche und ein Apartment im Obergeschoss. So wurde der Gasometer für die Anforderungen des 21. Jahrhunderts geöffnet, ohne seinen historischen Charakter zu verlieren.

240815_Schüco_Keyvisual_Erlkönig

Schüco Value Up

Erfahren Sie mehr zu unserem ganzheitlichen Angebot zum Werterhalt im Bestandsbau.

Mehr erfahren

Maximale Flexibilität bei höchster Systemsicherheit

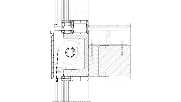
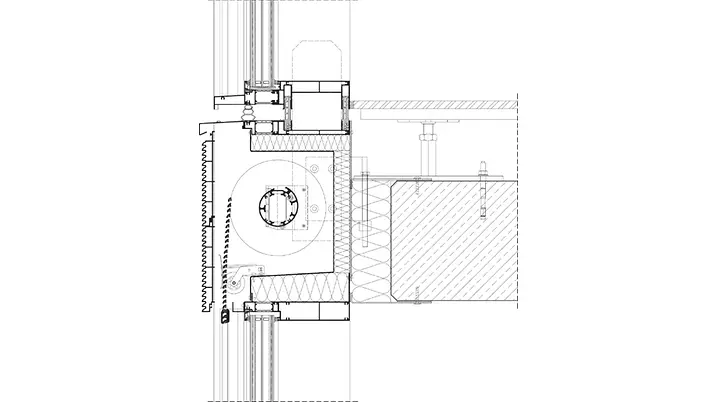
Insbesondere die Fassadenkonstruktion prägt die Erscheinung des neuen Büroturms: Die geschlossene Glasfassade tritt in einen spannungsvollen Dialog mit dem historischen Stahlgerüst. Ausgeführt als Sonderkonstruktion, überzeugt die Elementfassade mit sanft geführten Rundungen, filigranen Profilansichten und durchgehend homogene Fassadenlinien, die sich zu einem zeitlosen Design verbinden. Dank geprüfter Systemstatik mit konstruierten Anschlussdetails der Befestigungspunkte und klar definierten Schnittstellen blieb die Umsetzung selbst bei engen Platzverhältnissen jederzeit kontrollierbar. Auch die hohen Windlasten in über 70 Metern Höhe und die damit einhergehenden Belastungen für außen liegenden Sonnenschutz wurde gelöst: CTB von Schüco hält diesen Stand und schafft eine Balance aus Klimaschutz, Tageslichtnutzung und zurückhaltender Gestaltung bei hohem Komfort für die Nutzer.

Produktinformationen

FWS 50

Schüco Fassadensystem FWS 50

Leistungsstarke Pfosten-Riegel-Fassade mit 50 mm Ansichtsbreite – Basis für variantenreiche Lösungen

Das Schüco Fassadensystem FWS 50 überzeugt als Basissystem für Fassaden und Lichtdachbereiche mit hoher Flexibilität und attraktiven Gestaltungsoptionen – inklusive optimierter Fertigungs- und Montageprozesse. Dank eines breitgefächerten Systemprogramms sind Lösungen für unterschiedlichste Anforderungen und Anwendungen realisierbar.

Mehr erfahren

ADS 75 HD.HI

Schüco Türsystem ADS 75 HD.HI

Multifunktionale Lösung für großformatige Objekttüren mit hoher Dauerbelastung

Das Aluminium-Türsystem Schüco ADS 75 HD.HI (Heavy Duty.High Insulation) verbindet höchste Dauerfestigkeit mit Multifunktionalität und attraktiven Designoptionen – perfekt für anspruchsvolle Objektgebäude mit hohen Sicherheitsanforderungen.

Mehr erfahren

AWS 75.SI+

Schüco Fenstersystem AWS 75.SI+

Ein Plus an Wärmeschutz, Sicherheit und Verarbeitung

Das optimierte Standardfenstersystem Schüco AWS 75.SI+ (Super Insulated) für die Bautiefe 75 mm ist Bestandteil der Schüco AWS Systemplattform und die Basis für verschiedenste Anwendungen in energieeffizienten Gebäudehüllen. Je nach architektonischer Anforderung kann das hochwärmegedämmte Aluminium-System als Lochfenster, Fensterband, Fassadeneinsatzelement oder in Kombination mit den Schüco Türsystemen eingesetzt werden.

Mehr erfahren

AD UP 75

Schüco Türsystem AD UP 75

Universeller Einsatz als hochfrequentierte Objekttür und designorientierte Haustür

Hervorragende Dämmeigenschaften kombiniert mit hoher Stabilität – das Schüco Türsystem AD UP 75 mit einer Bautiefe von 75 mm bietet hohe Funktionssicherheit für alle Anforderungen im gehobenen Wohn- und Objektbau.

Mehr erfahren

CTB on AWS

Schüco Sonnenschutzsystem CTB auf Schüco Fenstersystem AWS

Aufgesetztes außen liegendes Aluminium-Mikrolamellensystem für optimale Abschattung

Optimal für den Einsatz in Büro- und Verwaltungsgebäuden sowie im privaten Wohnbau: Das Schüco Sonnenschutzsystem CTB (Concealed Toughened Blind) als aufgesetzte Lösung auf Schüco Fenstersystemen AWS. Der Sonnenschutz wird über dem Fenster in einem gedämmten Kasten installiert und fügt sich so optimal in die Gebäudeoptik ein. Komplett hochgefahren ist er durch die Integration in den oberen Kasten nicht sichtbar.

Mehr erfahren

AF UDC 80

Schüco Fassadensystem AF UDC 80

Dynamische Elementfassade mit hoher Gestaltungsfreiheit

Das Schüco Fassadensystem AF UDC 80 (Aluminium Façade Unitized Dynamic Construction) ist Bestandteil der Systemplattform für Aluminium-Elementfassaden Schüco AF UDC 80. Mit seinen skalierbaren und geprüften Baugruppen bietet das dynamische System Architekten, Planern und Verarbeitern eine einfache Realisierung von Bauvorhaben in elementierter Bauweise – mit einem breiten Anwendungs- und Gestaltungsspektrum basierend auf rationeller Planung und Verarbeitung.

Mehr erfahren

Hoher Vorfertigungsgrad sichert Präzision und Montage in Rekordzeit

Die Fassadenelemente wurden vollständig in der Werkstatt vorgefertigt – inklusive Verglasung, Dichtungsebenen und mechanischer Anschlüsse – und montagefertig an die Baustelle geliefert. Das gewährleistete eine wetterunabhängige Fertigung bei bester Verarbeitungsqualität und kalkulierbaren Kosten. Der hohe Vorfertigungsgrad vereinfachte außerdem die Baustellenlogistik erheblich, reduzierte Montagezeiten auf ein Minimum und sorgte dafür, dass selbst ein außergewöhnliches Objekt wie der Gasometer in kurzer Zeit eine ästhetische und energieeffiziente Gebäudehülle erhält. Sogar die spektakuläre Einbausituation – ein lediglich ein Meter breiter Zwischenraum zwischen Stahlkonstruktion und Rohbau – wurde souverän gemeistert. Ein speziell entwickeltes Schienensystem transportierte bis zu acht Meter hohe und zwei Tonnen schwere Elemente millimetergenau um das Gebäude, bevor sie per Kran auf Einbauhöhe gezogen wurden. Die elementierte Bauweise ermöglichte eine schnelle, sichere und hochpräzise Montage – ein entscheidender Faktor für ein Projekt dieser Größenordnung.

Ein Wahrzeichen, das Geschichte bewahrt und Zukunft gestaltet

Durch die umfassende Sanierung wurde der Gasometer zu einem Symbol des Neubeginns. Heute steht er als das zentrale Element des EUREF-Campus für Digitalisierung, Energieinnovation und internationale Begegnungen – mit beeindruckendem Panoramablick über Berlin. Das Projekt beweist, dass die komplexe architektonische Umgestaltung stillgelegter Gasometer wirtschaftlich, sicher und nachhaltig umsetzbar ist – und dient damit als Inspiration für die Umnutzung zahlreicher weiterer Industriebauten, die auf ihre Zukunft warten.