Bonfiglioli Headquarters

Futuristischer Kubus, in Metall gehüllt

Der neue Hauptsitz des Elektromotorenherstellers Bonfiglioli vereint ausgefallenes Design mit funktionaler Effizienz. Entworfen von Peter Pichler Architecture, schafft der monolithische Neubau durch intelligente Geometrie und eine optimale Nutzung von Tageslicht ein komfortables Arbeitsumfeld. Der zentrale Innenhof mit grünem Garten verbessert die natürliche Belüftung, während ein maßgeschneidertes, durchgehend plissiertes Aluminiumgewebe die Fassade einhüllt, Licht filtert und Energie spart.

Details zur Referenz

Gebäudetyp Büro und Verwaltung
Produktbereiche Fenster Fassaden
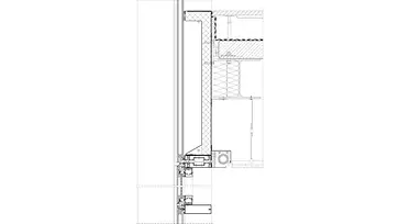
Schüco Systeme AWS 114 AWS 75 BS.HI+ FWS 60
Merkmale Neubau
Standort Calderara di Reno (BO), Italien
Fertigstellung 2024
Architekten PETER PICHLER ARCHITECTURE SRL
Fachbetrieb Pichler Projects
Bildnachweis © Fabio di Carlo

Produktinformationen

AWS 114

Schüco Fenstersystem AWS 114

Variantenreiches Fassadenfenster mit einfacher Montage

Das Schüco Fenstersystem AWS 114 steht für hohe Effizienz in Herstellung, Montage und Betrieb – ausführbar als Parallel-Ausstell- oder als Senkklapp-Fenster.

Mehr erfahren

AWS 75 BS.HI+

Schüco Fenstersystem AWS 75 BS.HI+

Hochwärmegedämmte Blockfenster mit verdecktem Flügel für gehobene Designansprüche

Mit hervorragenden Wärmedämmwerten sowie einem schlanken Design ohne sichtbare Flügelkonturen erfüllt Schüco AWS 75 BS.HI+ (Block System High Insulated) höchste energetische und architektonische Ansprüche bei größtmöglicher Transparenz.

Mehr erfahren

FWS 60

Schüco Fassadensystem FWS 60

Leistungsstarke Pfosten-Riegel-Fassade mit 60 mm Ansichtsbreite – Basis für variantenreiche Lösungen

Das Schüco Fassadensystem FWS 60 überzeugt als Basissystem für Fassaden und Lichtdachbereiche mit hoher Flexibilität und attraktiven Gestaltungsoptionen – inklusive optimierter Fertigungs- und Montageprozesse. Dank eines breitgefächerten Systemprogramms sind Lösungen für unterschiedlichste Anforderungen und Anwendungen realisierbar.

Mehr erfahren