Objektreportagen

Viel Licht und Freiraum

Einfamilienhaus in Paderborn

Bielefeld. Kontraste von offenen und geschlossenen Flächen, von glatten hellen und strukturierten dunklen Materialien setzte der Architekt eines Einfamilienhauses im Landkreis Paderborn konsequent in ein Objekt von bemerkenswerter Transparenz um. Großflächig verglaste und hoch wärmegedämmte Kunststoff-Fenster- und -Schiebetürsysteme von Schüco ermöglichten eine  einheitliche Fassadenoptik, individuelle Funktionalität sowie nachhaltig hohen Schutz vor Zugluft, Kälte, Nässe und Lärm.

Einfamilienhaus in Paderborn
Fotograf: Jochen Helle / Nutzungsrecht: Schüco International KG

Die Gebäudehülle des Einfamilienhauses zeichnet sich durch eine ausgeprägte horizontale Gliederung aus, die durch kontrastive Farbgebung und Materialvariation unterstrichen wird.

Download (jpg, 6,8 MB)
Fotograf: Jochen Helle / Nutzungsrecht: Schüco International KG

Ziel der Architektur war u. a., dass sich das Gebäude unaufdringlich in die Grundstückssituation in Hanglage einfügt und zugleich einen architektonischen Akzent in der Umgebung setzt.

Download (jpg, 6,4 MB)
Fotograf: Jochen Helle / Nutzungsrecht: Schüco International KG

Balkon und Dach sind auskragend und unterstützen zusätzlich zu den integrierten Raffstore-Elementen den Sonnen- und Blendschutz. Die äußeren Ansichtsflächen aller Fenster- und Türsysteme wurden farbharmonisch mit dem dunklen Klinker abgeglichen.

Download (jpg, 5,9 MB)
Fotograf: Jochen Helle / Nutzungsrecht: Schüco International KG

Großflächige Schüco Kunststoff-Fenstertüren und -Hebeschiebetüren sorgen für viel Lichteinfall und barrierefreie Zugänge, hier zur Dachterrasse im 1. OG.

Download (jpg, 6,1 MB)
Fotograf: Jochen Helle / Nutzungsrecht: Schüco International KG

Großflächige Schüco Kunststoff-Fenstertüren und -Hebeschiebetüren sorgen für viel Lichteinfall und barrierefreie Zugänge, hier zur Dachterrasse im 1. OG.

Download (jpg, 6,3 MB)
Fotograf: Jochen Helle / Nutzungsrecht: Schüco International KG

Die Innenansichten der Schüco Hebeschiebetüren sind in Abstimmung mit hellen Wand- und Bodenfarben in weiß belassen.

Download (jpg, 5,5 MB)
Fotograf: Jochen Helle / Nutzungsrecht: Schüco International KG

Der Wohn- und Essbereich im 1. OG: Bei schlanken Profilansichten konnten mit dem Schüco Kunststoff-Schiebetürsystem Elementgrößen bis zu 5.200 x 2.500 mm (BxH) umgesetzt werden.

Download (jpg, 6,3 MB)
Fotograf: Jochen Helle / Nutzungsrecht: Schüco International KG

Der Wohn- und Essbereich im 1. OG: Bei schlanken Profilansichten konnten mit dem Schüco Kunststoff-Schiebetürsystem Elementgrößen bis zu 5.200 x 2.500 mm (BxH) umgesetzt werden.

Download (jpg, 6,8 MB)
Fotograf: Jochen Helle / Nutzungsrecht: Schüco International KG

Gartenansicht EG: Alle Verglasungen sind als Dreifach-Isoliergläser mit Durchwurfhemmung ausgestattet. Hervorragende Dämmwerte werden langfristig auch durch die dauerhaft elastischen Schüco EPDM-Dichtungen der Schüco LivIng Systemelemente gewährleistet.

Download (jpg, 6,7 MB)
Urheberrecht: Adomako Architekten / Nutzungsrecht: Schüco International KG

Grundriss EG

Download (jpg, 1,3 MB)
Urheberrecht: Adomako Architekten / Nutzungsrecht: Schüco International KG

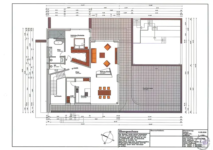
Grundriss OG

Download (jpg, 1,2 MB)
Urheberrecht: Adomako Architekten / Nutzungsrecht: Schüco International KG

Süd-Westansicht, Nord-Westansicht

Download (jpg, 838,6 KB)
Urheberrecht: Adomako Architekten / Nutzungsrecht: Schüco International KG

Nord-Ostansicht, Süd-Ostansicht

Download (jpg, 779,5 KB)
Urheberrecht: Adomako Architekten / Nutzungsrecht: Schüco International KG

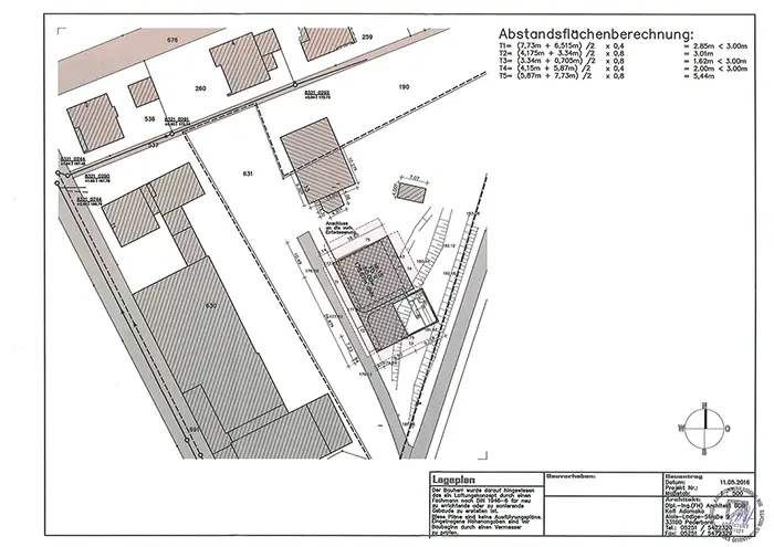
Abstandsflächenberechnung

Download (jpg, 1,1 MB)
Urheberrecht: Adomako Architekten / Nutzungsrecht: Schüco International KG

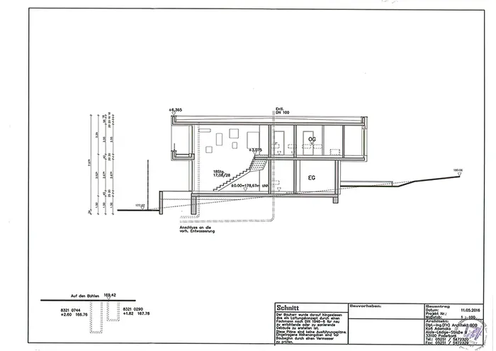
Schnitt

Download (jpg, 600,5 KB)

Nutzung der Bilddaten

Die hier zum Download angebotenen Bilddateien dürfen ausschließlich von Print- und Online-Publikationen zum Zwecke der redaktionellen Veröffentlichung im Kontext mit der auf dieser Seite zum Download bereitstehenden Schüco Pressinformation genutzt werden. Zur Sicherung der uns seitens der Fotografen überlassenen Urheberrechte ist die Bildnutzung nur unter Angabe der jeweils aufgeführten Fotoquelle zulässig.

Ihre Ansprechpartnerin

Ulrike Krüger

Leitung Presse- und Öffentlichkeitsarbeit

Schüco International KG

Karolinenstraße 1-15
33609 Bielefeld

+49 521 783 803 pr@schueco.com