Objektreportagen

Sternstunde nachhaltiger Architektur

Wohnhaus in Süddeutschland

Bielefeld. Es gibt Bauprojekte, bei denen die ganzheitliche Planung des Architekten auf den bautechnischen Sachverstand und ein ausgeprägtes Stilempfinden des Bauherrn trifft. In solchen Fällen entsteht Außerordentliches - so geschehen bei einem privaten Einfamilienhaus in Süddeutschland, das Harter + Kanzler & Partner, Freiburg, unter Einsatz von neun großflächigen Schüco Schiebesystemen ASS 77 PD.SI realisierten.

A place of freedom and tranquillity
Bildnachweis: Schüco International KG / Fotograf: Olaf Herzog - www.olafherzog.de

Die hintere Fassade des lang gestreckten Baukörpers öffnet sich zum Garten hin auf beiden Ebenen nahezu vollständig über raumhohe Schiebesysteme (Schüco ASS 77 PD.SI).

Download (jpg, 4,8 MB)
Bildnachweis: Schüco International KG / Fotograf: Olaf Herzog - www.olafherzog.de

Die hintere Fassade des lang gestreckten Baukörpers öffnet sich zum Garten hin auf beiden Ebenen nahezu vollständig über raumhohe Schiebesysteme (Schüco ASS 77 PD.SI).

Download (jpg, 3,2 MB)
Bildnachweis: Schüco International KG / Fotograf: Olaf Herzog - www.olafherzog.de

Zu einer Seite des Gebäuderiegels ist eine geschützte Terrassenfläche ausgebildet. Sie wird aus zwei Nutzungszonen über die verglasten Schiebesysteme erschlossen.

Download (jpg, 4,2 MB)
Bildnachweis: Schüco International KG / Fotograf: Olaf Herzog - www.olafherzog.de

Variable Transparenz und Offenheit auf 11 m Breite. Der auskragende Balkon und innen liegende Vorhänge sorgen für den Sonnenschutz.

Download (jpg, 2,8 MB)
Bildnachweis: Schüco International KG / Fotograf: Olaf Herzog - www.olafherzog.de

Variable Transparenz und Offenheit auf 11 m Breite. Der auskragende Balkon und innen liegende Vorhänge sorgen für den Sonnenschutz.

Download (jpg, 3,7 MB)
Bildnachweis: Schüco International KG / Fotograf: Olaf Herzog - www.olafherzog.de

Die Schüco Systemelemente wurden so eingebaut, dass lediglich die schlanken Mittelpfosten bzw. vertikalen Profile der Schiebeelemente sichtbar sind. Alle Elemente sind motorisch angetrieben für komfortables, berührungsloses Öffnen und Schließen.

Download (jpg, 3,4 MB)
Bildnachweis: Schüco International KG / Fotograf: Olaf Herzog - www.olafherzog.de

Die Schüco Systemelemente wurden so eingebaut, dass lediglich die schlanken Mittelpfosten bzw. vertikalen Profile der Schiebeelemente sichtbar sind. Alle Elemente sind motorisch angetrieben für komfortables, berührungsloses Öffnen und Schließen.

Download (jpg, 3,8 MB)
Bildnachweis: Schüco International KG / Fotograf: Olaf Herzog - www.olafherzog.de

Flächenaufteilung und Arrangement der Ebenen sind der Hanglage des Baugrundstücks optimal angepasst. Eine freitragende Treppe führt vom oberen Zugangsbereich (EG, Straßenseite) hinunter in die hauptsächlichen Wohnbereiche auf Gartenebene.

Download (jpg, 2,7 MB)
Bildnachweis: Schüco International KG / Fotograf: Olaf Herzog - www.olafherzog.de

Flächenaufteilung und Arrangement der Ebenen sind der Hanglage des Baugrundstücks optimal angepasst. Eine freitragende Treppe führt vom oberen Zugangsbereich (EG, Straßenseite) hinunter in die hauptsächlichen Wohnbereiche auf Gartenebene.

Download (jpg, 2,9 MB)
Bildnachweis: Schüco International KG / Fotograf: Olaf Herzog - www.olafherzog.de

Die straßenseitige Außenwand ist im Untergeschoss großflächig mit Kunst bespielbar und beherbergt einen beidseitig nutzbaren, durchgesteckten Kamin.

Download (jpg, 2,6 MB)
Bildnachweis: Harter + Kanzler & Partner, Freiburg

Lageplan mit grau gekennzeichnetem Objekt

Download (pdf, 1,4 MB)
Bildnachweis: Harter + Kanzler & Partner, Freiburg

Grundriss EG

Download (pdf, 721,4 KB)
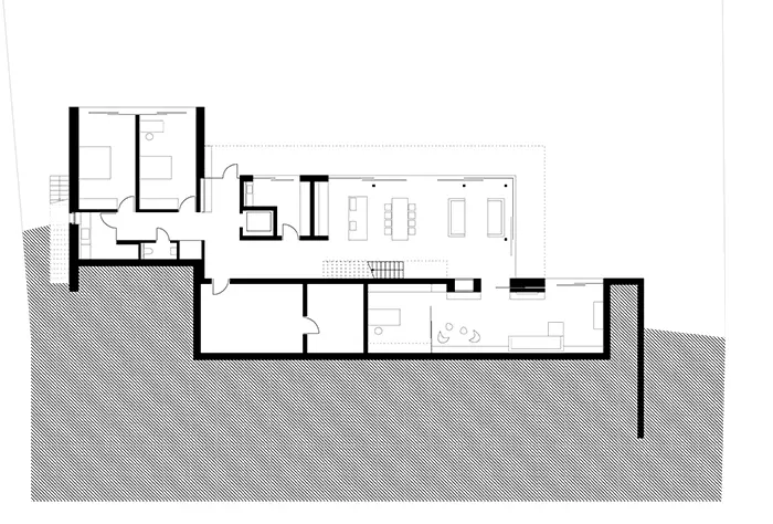
Bildnachweis: Harter + Kanzler & Partner, Freiburg

Grundriss UG

Download (pdf, 2,4 MB)

Nutzung der Bilddaten

Die hier zum Download angebotenen Bilddateien dürfen ausschließlich von Print- und Online-Publikationen zum Zwecke der redaktionellen Veröffentlichung im Kontext mit der auf dieser Seite zum Download bereitstehenden Schüco Pressinformation genutzt werden. Zur Sicherung der uns seitens der Fotografen überlassenen Urheberrechte ist die Bildnutzung nur unter Angabe der jeweils aufgeführten Fotoquelle zulässig.

Ihre Ansprechpartnerin

Ulrike Krüger

Leitung Presse- und Öffentlichkeitsarbeit

Schüco International KG

Karolinenstraße 1-15
33609 Bielefeld

+49 521 783 803 pr@schueco.com