Objektreportagen

Kreatives Spiel mit Raumkörpern

Privates Wohnhaus bei Hamburg

Modernität und Funktionalität müssen nicht zwangsläufig in eine "weiße Kiste" münden - das beweist ein vom Architekturbüro Scholz gestaltetes Einfamilienhaus in Norddeutschland. Bei dem Entwurf sind Nutzungszonen von außen deutlich wahrnehmbar durch optisch eigenständige Kuben, die sich im Inneren zu einem konzeptionellen Ganzen verbinden. Spektakulär das groß dimensionierte Fassadenelement vom Wohnraum zur Terrasse - eine Schüco Stahlsysteme Jansen Konstruktion in Sonderabmessungen auf Basis des Systems VISS 50 mit imposanten Abmessungen von 6,05 x 4,20 m.

AWS Barrierefrei
Bildnachweis: Schüco International KG / Andreas Weiss, Hamburg

In jedem Detail durchdachtes Ensemble von Raumkörpern: privates Wohnhaus in Norddeutschland, entworfen vom Architekturbüro Annette Scholz, Jesteburg (bei Hamburg).

Download (jpg, 3,8 MB)
Bildnachweis: Schüco International KG / Andreas Weiss, Hamburg

Die unterschiedlichen Funktionsbereiche sind von außen als formal eigenständige Module wahrnehmbar und setzen sich auch in der Fassadengestaltung voneinander ab.

Download (jpg, 2,7 MB)
Bildnachweis: Schüco International KG / Andreas Weiss, Hamburg

Die unterschiedlichen Funktionsbereiche sind von außen als formal eigenständige Module wahrnehmbar und setzen sich auch in der Fassadengestaltung voneinander ab.

Download (jpg, 3,0 MB)
Bildnachweis: Schüco International KG / Andreas Weiss, Hamburg

Der Kubus mit dem abgesenkten Wohnbereich besitzt die imposante Raumhöhe von fünf Metern. Das großflächige Fassadenelement wurde von Langer Metallbau in Sonderabmessung realisiert (Schüco Stahlsysteme Jansen VISS 50).

Download (jpg, 2,6 MB)
Bildnachweis: Schüco International KG / Andreas Weiss, Hamburg

Bodenversenkte Profile schaffen einen barrierefreien Übergang zwischen Wohnraum und Terrasse.

Download (jpg, 2,3 MB)
Bildnachweis: Schüco International KG / Andreas Weiss, Hamburg

Spektakuläre Abmessungen: 6,05 x 4,20 m misst das dreifach verglaste Fassadenelement mit einem U-Wert von 1,15 W/m²K (Schüco Stahlsysteme Jansen VISS 50).

Download (jpg, 2,8 MB)
Bildnachweis: Schüco International KG / Andreas Weiss, Hamburg

Spektakuläre Abmessungen: 6,05 x 4,20 m misst das dreifach verglaste Fassadenelement mit einem U-Wert von 1,15 W/m²K (Schüco Stahlsysteme Jansen VISS 50).

Download (jpg, 2,8 MB)
Bildnachweis: Schüco International KG / Andreas Weiss, Hamburg

Schlank profilierte Wendetüren von 4,20 m Höhe: Hochwertige Systemkonstruktionen mit vergleichbaren Abmessungen sind sonst vornehmlich bei anspruchsvollen Großobjekten anzutreffen.

Download (jpg, 2,7 MB)
Bildnachweis: Schüco International KG / Andreas Weiss, Hamburg

Schlank profilierte Wendetüren von 4,20 m Höhe: Hochwertige Systemkonstruktionen mit vergleichbaren Abmessungen sind sonst vornehmlich bei anspruchsvollen Großobjekten anzutreffen.

Download (jpg, 3,2 MB)
Bildnachweis: www.abscholz.de

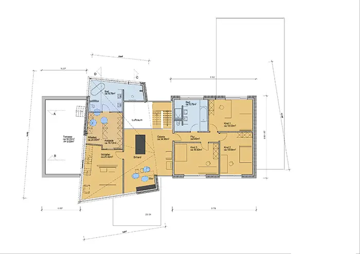
Grundriss EG

Download (pdf, 63,5 KB)
Bildnachweis: www.abscholz.de

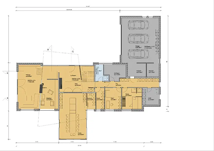
Grundriss Dachgeschoss

Download (pdf, 68,1 KB)
Bildnachweis: www.abscholz.de

Annette Scholz, Architekturbüro Scholz, Jesteburg bei Hamburg

Download (jpg, 1,5 MB)

Nutzung der Bilddaten

Die hier zum Download angebotenen Bilddateien dürfen ausschließlich von Print- und Online-Publikationen zum Zwecke der redaktionellen Veröffentlichung im Kontext mit der auf dieser Seite zum Download bereitstehenden Schüco Pressinformation genutzt werden. Zur Sicherung der uns seitens der Fotografen überlassenen Urheberrechte ist die Bildnutzung nur unter Angabe der jeweils aufgeführten Fotoquelle zulässig.

Ihre Ansprechpartnerin

Ulrike Krüger

Leitung Presse- und Öffentlichkeitsarbeit

Schüco International KG

Karolinenstraße 1-15
33609 Bielefeld

+49 521 783 803 pr@schueco.com